6946 E Channel Dr
Hernando, FL 34442

Scroll to Content

Details

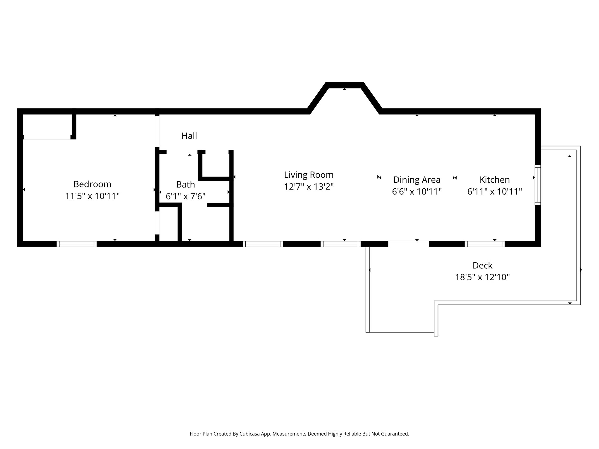
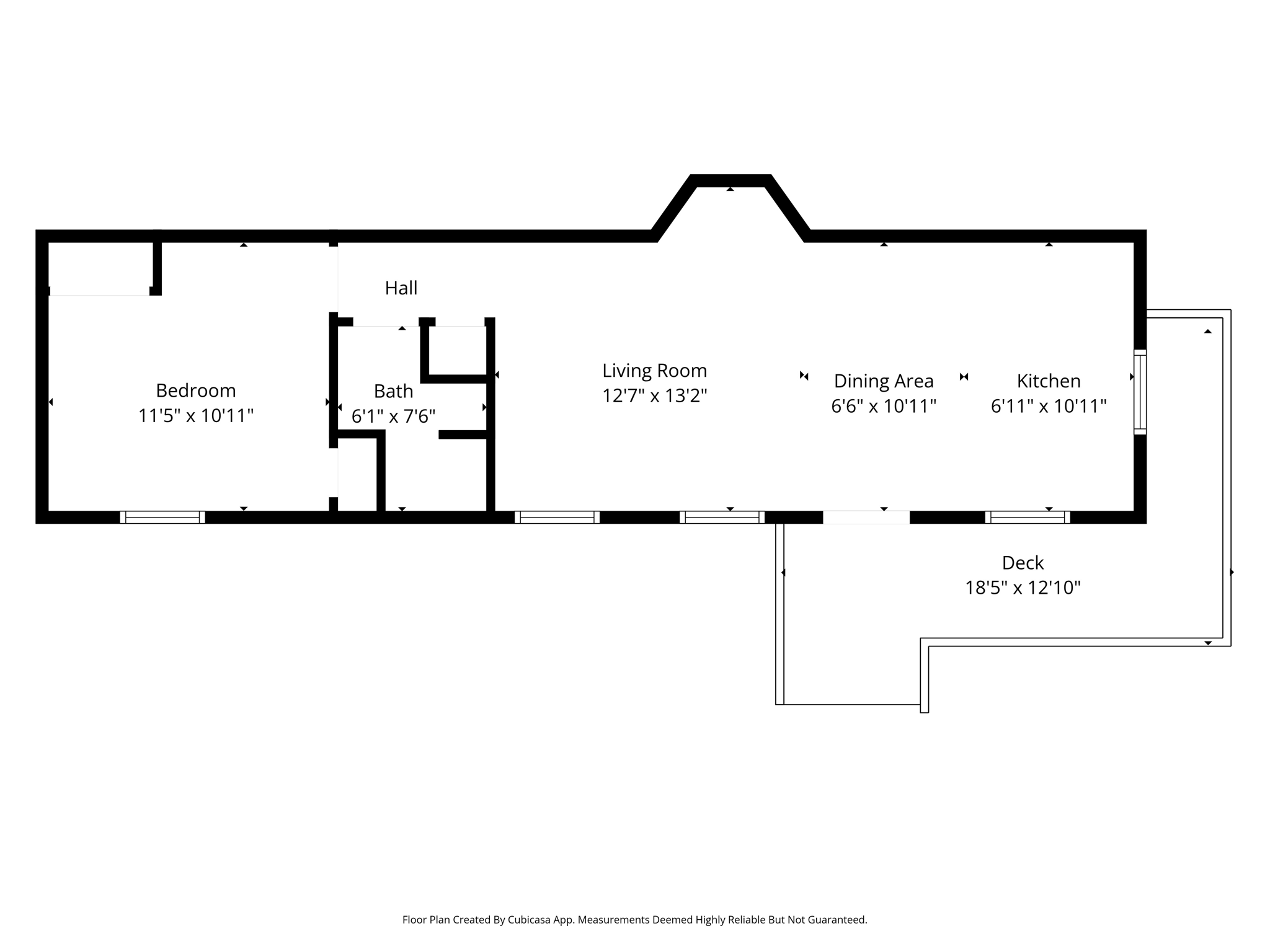
Charming and full of character, this recently updated/remodeled 1-bedroom, 1-bath mobile home offers 540 square feet of efficient living on a picturesque .49-acre canal-front lot with access to the Withlacoochee River. With its warm, rustic cabin feel, this home captures the essence of Old Florida living. Tucked away off the beaten path and surrounded by nature, this peaceful retreat offers both privacy and charm. Head east by boat along the canal and you’ll find yourself on the Withlacoochee River, opening the door to endless outdoor adventure. Whether you're searching for a weekend getaway or a low-maintenance full-time residence, this property delivers. Inside, you’ll find a comfortable kitchen with eye-catching red appliances, a full bath featuring a walk-in shower, and new wood-look flooring throughout. Recent improvements include a new electrical panel (2023), electric tankless water heater (2023), and 14 SEER mini-split system with both heating and cooling (2023). Step outside to a wraparound porch—perfect for relaxing and soaking in the quiet, natural surroundings. The fully fenced property with post and wire offers added privacy and flexibility, and also features an RV hookup, multiple storage sheds, ample parking, and a private boat ramp for easy access to the water. A rare opportunity to own your own slice of waterfront paradise at an exceptional value.

  • $109,000
  • 1 Bedrooms
  • 1 Bathrooms
  • 540 Sq/ft
  • Lot 0.49 Acres
  • Built in 1984
  • MLS: 851766 / OM718734

Images

Floor Plans

Contact

Feel free to contact us for more details!

Tami Mayer

FLORIDA MOVES... Powered by Epique Realty

+1352.476.1507

tamaralmayer@gmail.com

https://TamiMayer.com

License #: BK3121072

FLORIDA MOVES... Powered by Epique Realty