13 Oak Knoll St, Beverly Hills, FL 34465
Toggle Navigation
Images
Floor Plans
Map
13 Oak Knoll St
Beverly Hills, FL 34465
Scroll to Content
Images
Slideshow
Photo Grid
Hide
Previous
Next
Show more
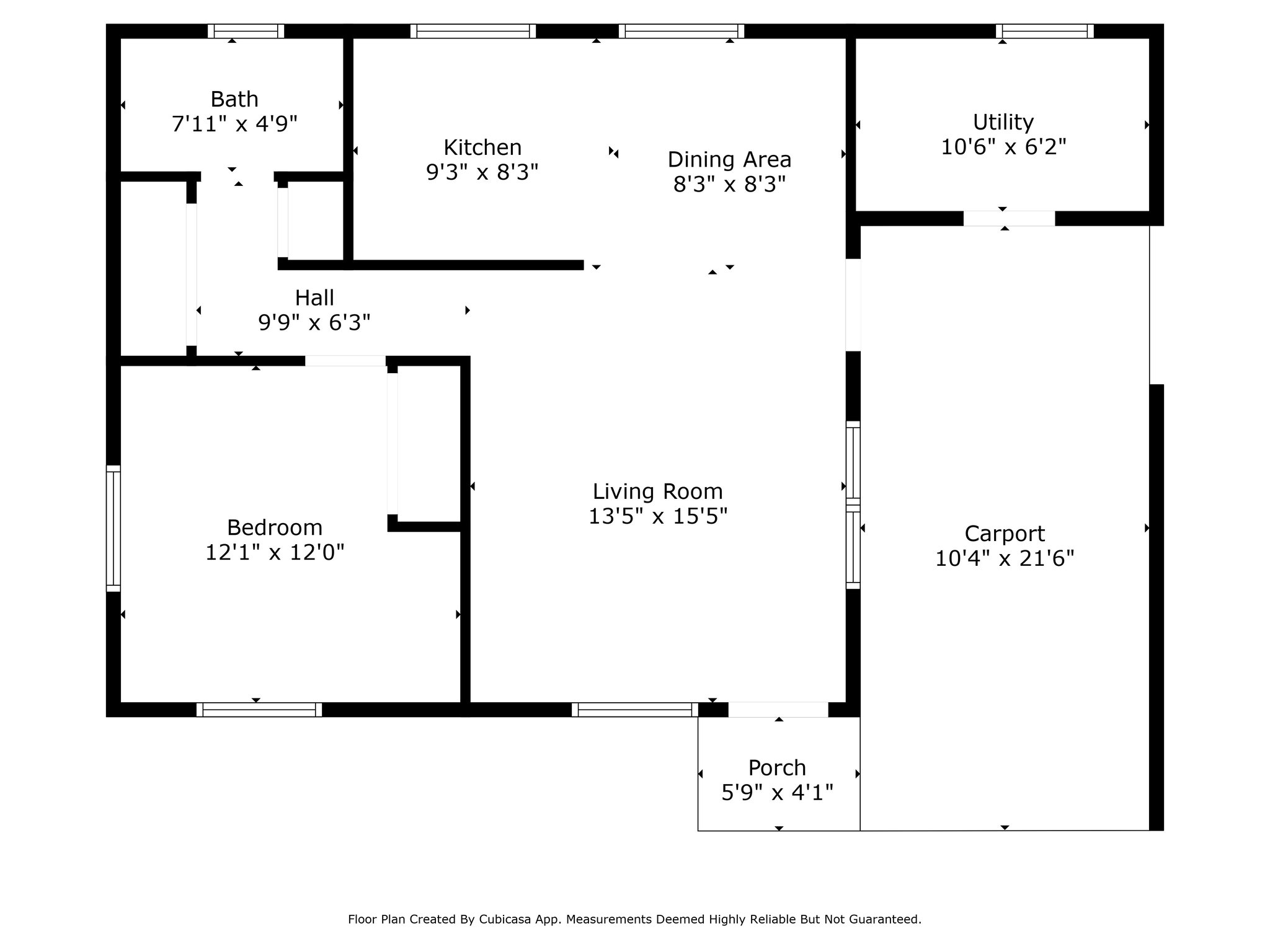
Floor Plans
Slideshow
Photo Grid
Hide
Previous
Next