2857 N Rivers Edge Blvd, Crystal River, FL 34429
Toggle Navigation
Images
Videos
Floor Plans
Map
2857 N Rivers Edge Blvd
Crystal River, FL 34429
Scroll to Content
Images
Slideshow
Photo Grid
Hide
Previous
Next
Show more
Videos
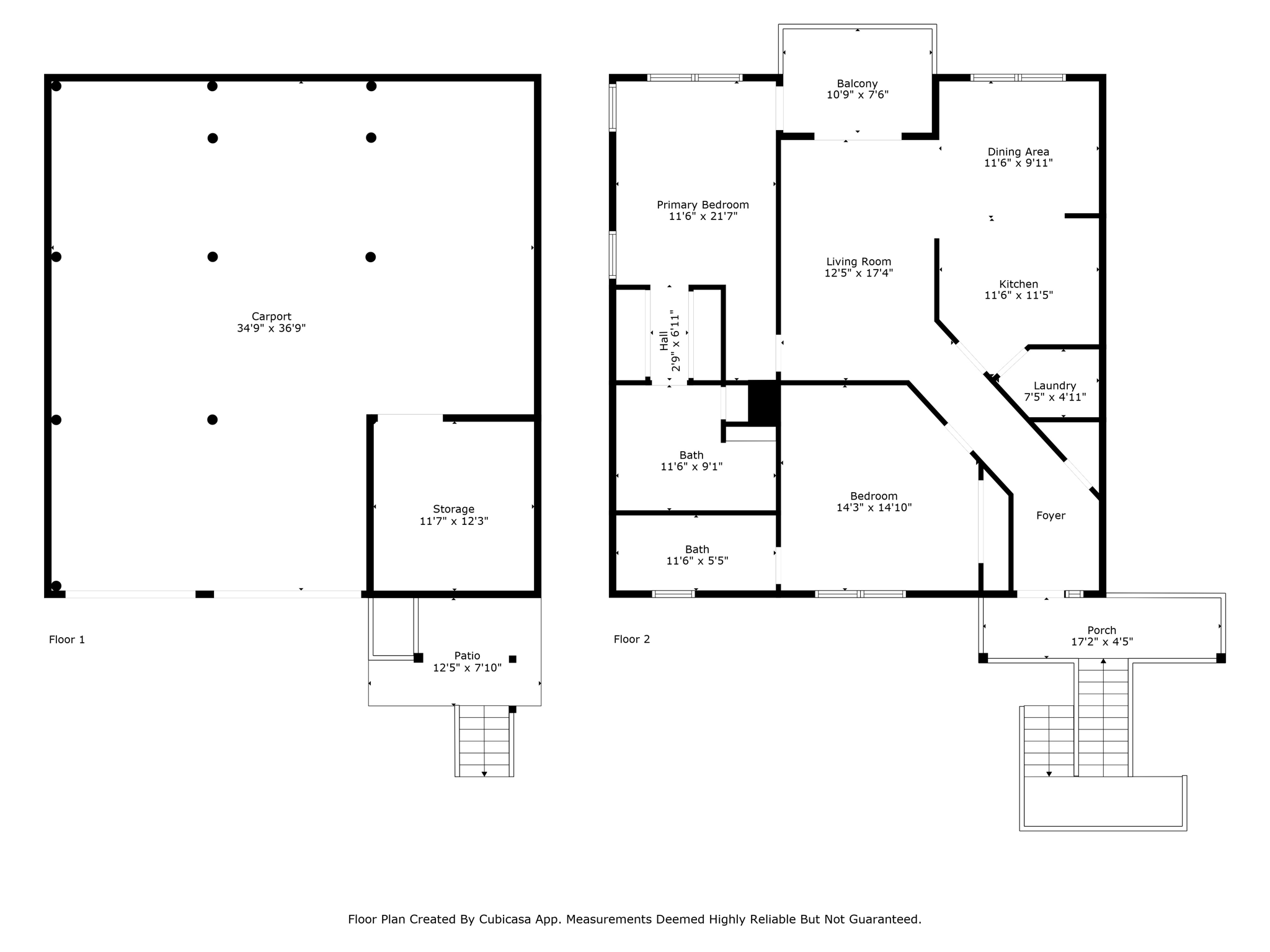
Floor Plans
Slideshow
Photo Grid
Hide
Previous
Next