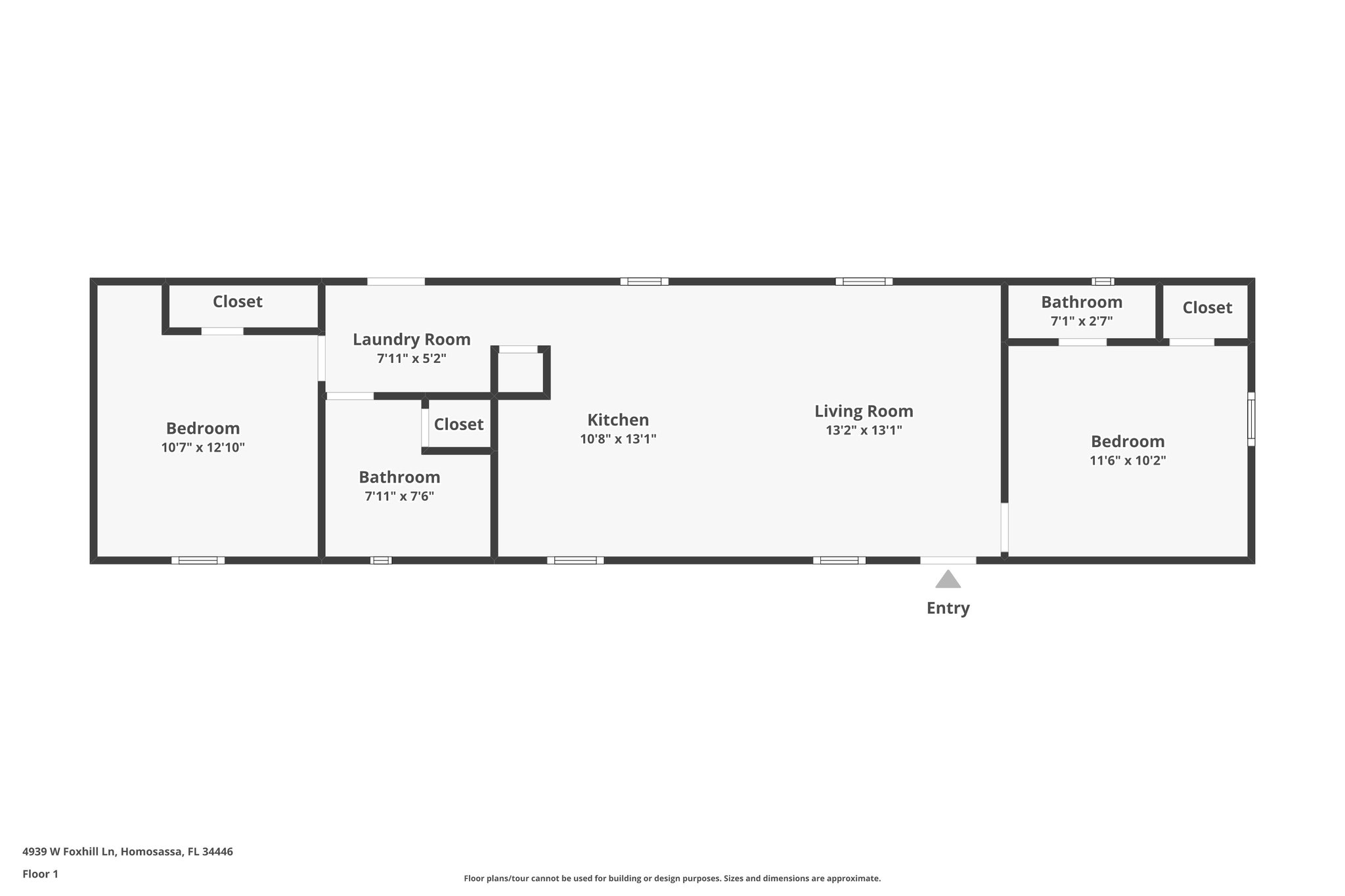
4939 W Foxhill Ln, Homosassa, FL 34446
Toggle Navigation
Images
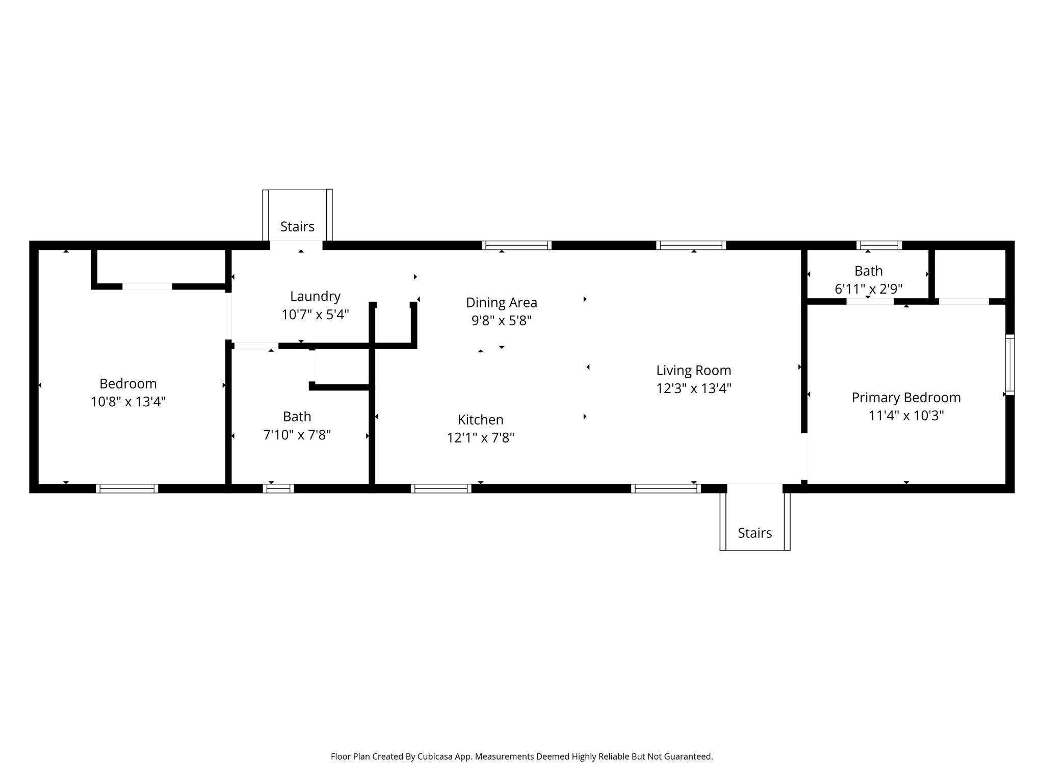
Floor Plans
3D Tour
Map
4939 W Foxhill Ln
Homosassa, FL 34446
Scroll to Content
Images
Slideshow
Photo Grid
Hide
Previous
Next
Show more
Floor Plans
Slideshow
Photo Grid
Hide
Previous
Next
3D Tour