18154 Scooter Ct, Spring Hill, FL 34610
Toggle Navigation
Images
Map
Floor Plans
18154 Scooter Ct
Spring Hill, FL 34610
Scroll to Content
Images
Slideshow
Photo Grid
Hide
Previous
Next
Show more
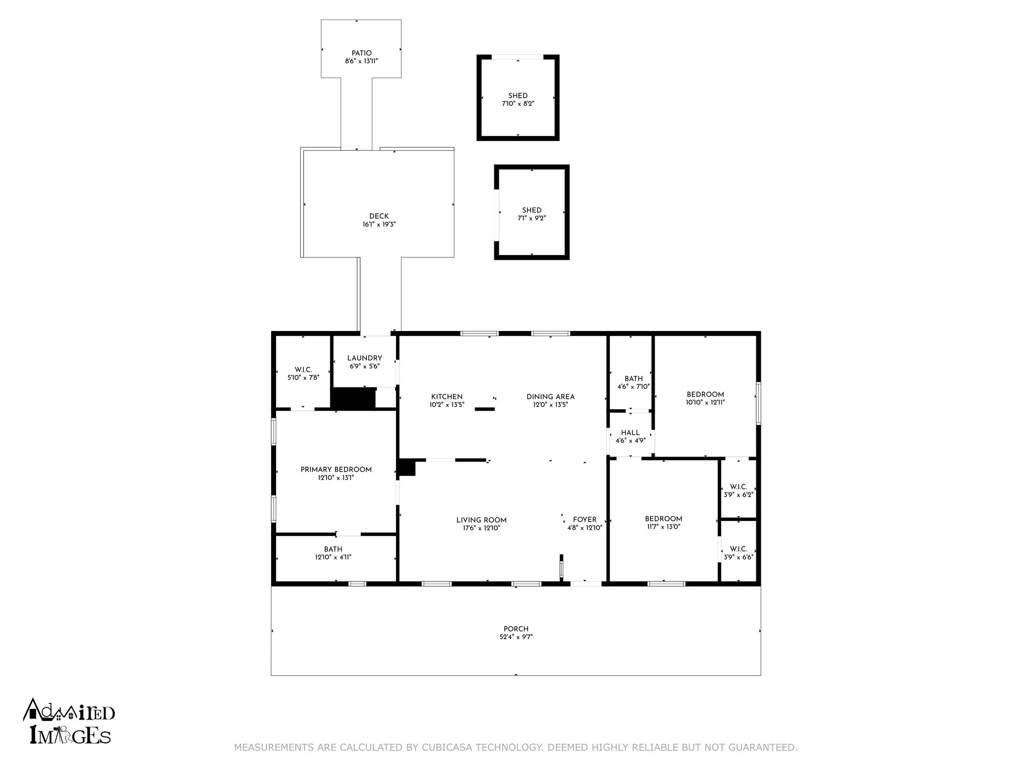
Floor Plans
Slideshow
Photo Grid
Hide
Previous
Next